Ruim perceel voor een halfopen bebouwing in het landelijke Haspengouw
Hoeselt
Romershovenstraat
112 A
Ruim perceel in het landelijke haspengouw.
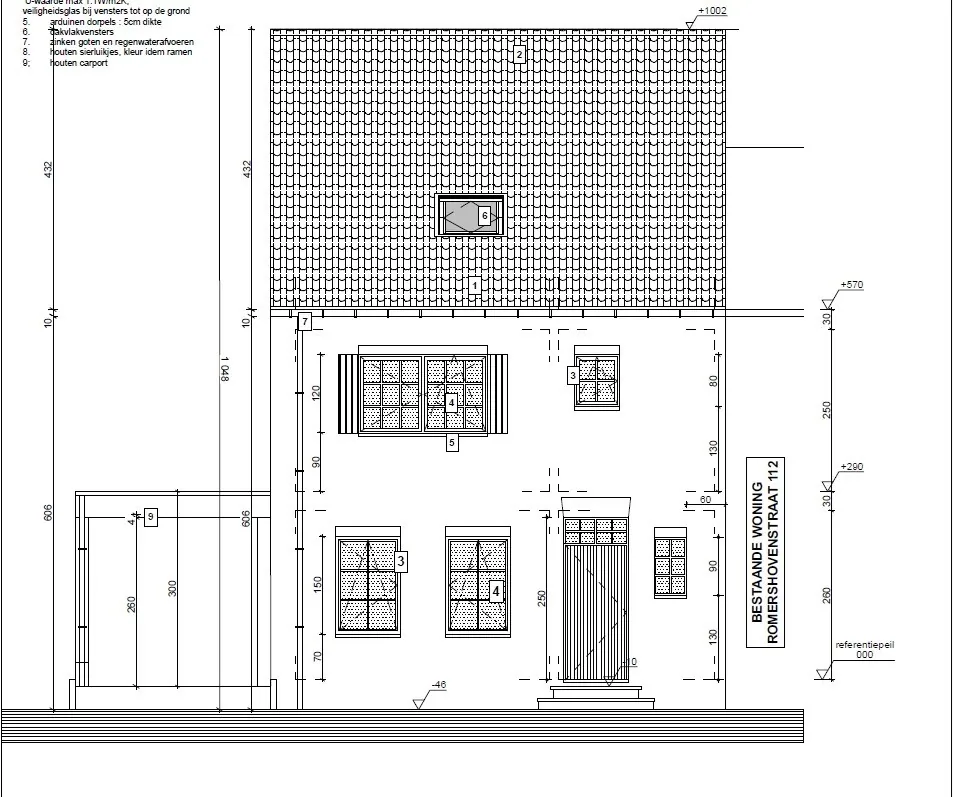
Dit rechthoekig perceel met een oppervlakte van 7 are 42 ca bevindt zich in een deelgemeente van Hoeselt(Romershoven). De grond is noordoostelijk georiënteerd en beschikt reeds over een bouwvergunning.
De bouwplannen hebben zeker rekening gehouden met het groene verzicht.
Bel vandaag nog 011/24.16.01 om een afspraak te maken om de rest van de plannen in te kijken.
Algemeen
| Adres: | Romershovenstraat 112/A Hoeselt |
| Referentie: | K2182-Z |
| Vraagprijs: | € 119.500 |
| Type: | Grond |
| Beschikbaar vanaf: | Bij akte |
| Perceeloppervlakte: | 742 m² |
| Type constructie: | Traditioneel |
Wettelijke gegevens
| Kadastrale Nummers: | Sectie A nr. 1130/A en 1130/C |
| Kadastrale Oppervlakte: | 742 m² |
| Stedenbouwkundige vergunning: | Ja |
| Voorkooprecht: | Neen |
| Verkavelingsvergunning van toepassing: | Neen |
| Stedenbouwkundige bestemming: | Woongebied met landelijk karakter |
| Dagvaarding en herstelvordering: | Geen rechterlijke herstelmaatregel of bestuurlijke maatregel opgelegd |
| Overstromingsgevoelig: | Niet meegedeeld |
| Overstromingsgebied: | Niet meegedeeld |
| Overstromingskans perceel (P-score): | |
| Overstromingskans gebouw (G-score): | B |
| Erfgoed: | Niet meegedeeld |
Vraag informatie aan
Hoeselt
Romershovenstraat
112 A
€ 119 500
Vertel een vriend
Hoeselt
Romershovenstraat
112 A
€ 119 500
Plan uw bezoek
Hoeselt
Romershovenstraat
112 A